Ref: 225251361 - Dato: 16.07.2021

La Cala, Costa del Sol

La Cala! HJØRNEBOLIG med havutsikt! Stor terrasse. Ferdigstilles i 2021. Sydvest-vendt

Utgått annonse

Denne annonsen er ikke lenger aktiv.


    Beliggenhet

    NYE BOLIGER VED LA CALA - MED UTSIKT OG STORE TERRASSER 
    Et helt nytt boligområde i Mijas på Costa del Sol . 
    Her bygges det moderne leiligheter med fantastisk utsikt over Middelhavet med store og utsøkte fellesarealer. 
    Boligene har romslige terrasser og er utformet for å gi mye lys inn i leilighetene.

    INNHOLD
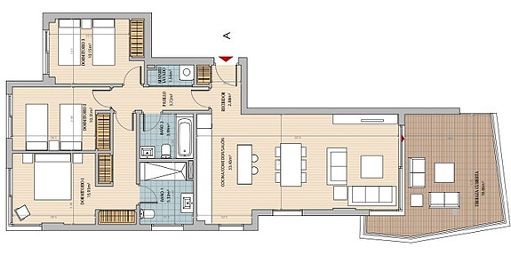
    139m2 inkludert terrasse på 19m2 - se plantegning
    3 soverom og 2 bad
    Hjørnebolig
    Beliggenhet er SYD-VEST med masse sol
    Havutsikt
    Her er det stor stue/spisestue, moderne kjøkken med kjøkkenøy.
    Hovedsoverom med walk-in garderobe.  
    Utgang til store terrasser med panoramautsikt over Middelhavet fra oppholdsrom og alle soverom. 

    Dette lukkede anlegget, omgitt av grøntområder og hager, har spektakulære fellesområder og er et perfekt sted for å ta med familie og venner.
    Utendørs og innendørs bassenger, spa-område med tyrkisk bad og badstue, utstyrt treningsstudio, paddle tennisbane, putting green, urbane hager.

    Dette er et flott område i rolige omgivelser, og nært noen av kystens beste områder. 
    Plassert mellom Marbella og Fuengirola, og med kun 20 minutter fra Malaga flyplass. 
    I nærområdet finner man flotte golfbaner, samt et stort utvalg av nydelige strender og gode restauranter.

    Book video-visning i dag!

    OM SPANIA1 AS
    SPANIA1 AS er et norsk aksjeselskap med kontor i Norge og Spania.
    Vi selger nye boliger direkte fra utbygger, og er en ledende aktør i Norge.
    Vi ser til at det blir gitt bankgaranti på alle nye prosjekter.

    Hovedpunkter

    • Kjøp direkte fra utbygger
    • Bankgaranti på alle nybygg
    • Vi har kontor i Norge, Alicante og Malaga
    • Norske erfarne meglere
    • Oppfølging - fra kjøp til innflytting
    • Meget gode referanser fra kunder 
    • Hjelp til utleie av boligen
    • 80% finansiering i euro

    Den beste investeringen dere kan gjøre - er å velge riktig megler!
    Se våre referanser på www.spania1.no

    KJØP DIREKTE
    SPANIA1 er IKKE et fordyrende mellomledd, og dere kjøper direkte hos utbygger. 
    Vi er et bindeledd mellom dere, spansk advokat, og utbygger.
    Dere får god hjelp fra kjøp til innflytting - uten at det koster noe ekstra.

    AVGIFTER I SPANIA
    Samlede offentlige avgifter ved kjøp av bolig i Spania er ca 13-14%.
    Les mer om avgifter på vår webside.

    UTLEIE
    Boligen i Spania kan full-finansieres ved utleie.
    Vi har et eget servicekontor som ordner med alt det praktiske.
    Mange velger å annonsere selv, men bruker våre kontakter i Spania for vask og renhold. Dette tar vi ikke betalt for. Les om utleie på vår webside.

    TIPS
    Bruk én megler (ikke flere) til å vise dere ALLE aktuelle prosjekter.
    Da rekker vi å bli kjent med deres behov, og grunnlaget for å finne drømmeboligen øker.

    SPANIA1 vil alltid forhandle frem beste avtale på vegne av våre kunder!

    Publisert: 16.07.2021

  • Fasiliteter

    • Balkong/Terrasse
    • Bilvei frem
    • Garasje/P-plass
    • Golfbane
    • Offentlig vann/kloakk
    • Utsikt
    • Vaktmester-/vektertjeneste
    • Innlagt strøm
    • Innlagt vann
    • Turterreng

Ta kontakt om denne boligen