Ref: 226152526 - Dato: 27.07.2021

Calahonda, Costa del Sol

Nytt rekkehus nær Marbella med gangavstand til strand, butikk og spisesteder. 42 solgt. 6 ledige.

Utgått annonse

Denne annonsen er ikke lenger aktiv.


    Beliggenhet

    GANGAVSTAND TIL DET MESTE 
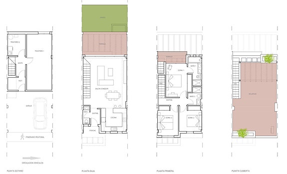
    6 stk nye rekkehus (av 48) - klar for innflytting - med 3 soverom og 2 bad og havutsikt beligget nær stranden og andre fasiliteter.
    Lett adkomst til motorveien, 10 minutter fra Marbella og 30 minutter fra Málaga lufthavn.
    Calahonda er Andalusias største urbanisering og har en attraktiv 4 kilometer lang sandstrand med flere chiringuitos (strandbarer / restauranter) og gode sports- og fritidsaktiviteter. Nær den norske sjømannskirken, kjøpesentre, banker, skoler, helsesentre og alt du trenger, men vekk fra støy og stress. Og bare 700 meter til strand.
    2 parkeringplasser og bod i kjelleren og muligheten for å bygge et ekstra rom i kjelleren.

    Innhold:

    • Lukket annleg med 24 timers sikkerhet
    • Fantastisk sjøutsikt
    • 3 soverom
    • 2 bad
    • Areal 160 m2
    • Terrasser 67 m2
    • Privat hage 129 m2
    • Takterrasse  61 m2
    • Mulighet for ekstra soverom i kjeller
    • 2 parkeringsplasser i underetasje
    • Oppbevaringsbod
    • Concierge og vedlikeholdstjeneste i anlegget

    Vi i Spania1 gleder oss til å vise dere dette, og andre flotte prosjekter!

     

    OM SPANIA1 AS
    SPANIA1 AS er et norsk aksjeselskap med kontor i Norge og Spania.
    Vi selger nye boliger direkte fra utbygger, og er en ledende aktør i Norge.
    Vi ser til at det blir gitt bankgaranti på alle nye prosjekter.

    Hovedpunkter

    • Garanti på alle nybygg
    • Vi har kontor i Norge, Alicante og Malaga
    • Norske erfarne meglere
    • Oppfølging - fra kjøp til innflytting
    • Meget gode referanser fra kunder 
    • Hjelp til utleie av boligen
    • Inntil 80% finansiering i euro

    Den beste investeringen dere kan gjøre - er å velge riktig megler!
    Se våre referanser på www.spania1.no

    KJØP DIREKTE
    SPANIA1 er IKKE et fordyrende mellomledd, og dere kjøper direkte hos utbygger. 
    Vi er et bindeledd mellom dere, spansk advokat, og utbygger.
    Dere får god hjelp fra kjøp til innflytting - uten at det koster noe ekstra.

    AVGIFTER I SPANIA
    Samlede offentlige avgifter ved kjøp av bolig i Spania er ca 13-14%.
    Les mer om avgifter på vår webside.

    UTLEIE
    Boligen i Spania kan finansieres ved utleie.
    Vi har et eget servicekontor som ordner med alt det praktiske.
    Mange velger å annonsere selv, men bruker våre kontakter i Spania for vask og renhold. Dette tar vi ikke betalt for. Les om utleie på vår webside.

    TIPS
    Bruk én megler (ikke flere) til å vise dere ALLE aktuelle prosjekter.
    Da rekker vi å bli kjent med deres behov, og grunnlaget for å finne drømmeboligen øker.
    SPANIA1 vil alltid forhandle frem beste avtale på vegne av våre kunder!

    Spania1 har sitt hovedfokus på områdene mellom Málaga og Estepona:
    Málaga, Torremolinos, Benalmádena, Reserva del Higuerón, Carvajal, Torreblanca, Fuengirola, El Chapparal, La Cala, Mijas, Calahonda, Cabopino, Elvira, Marbella, Puerto Banús, San Pedro, Benahavis, Cancelada, Estepona og Casares.

     

    Publisert: 27.07.2021

  • Fasiliteter

    • Balkong/Terrasse
    • Bilvei frem
    • Garasje/P-plass
    • Golfbane
    • Offentlig vann/kloakk
    • Takterrasse
    • Utsikt
    • Vaktmester-/vektertjeneste
    • Innlagt strøm
    • Innlagt vann
    • Strandlinje
    • Turterreng

Ta kontakt om denne boligen