Ref: 228334953 - Dato: 14.08.2021

Torre de la Horadada, Costa Blanca sør

Villa rett ved stranden. Privat basseng, parkering, takterrasse - Få minutter gangavstand til stranden og torget!

Utgått annonse

Denne annonsen er ikke lenger aktiv.


    Beliggenhet

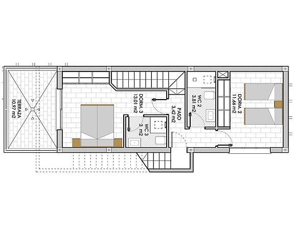
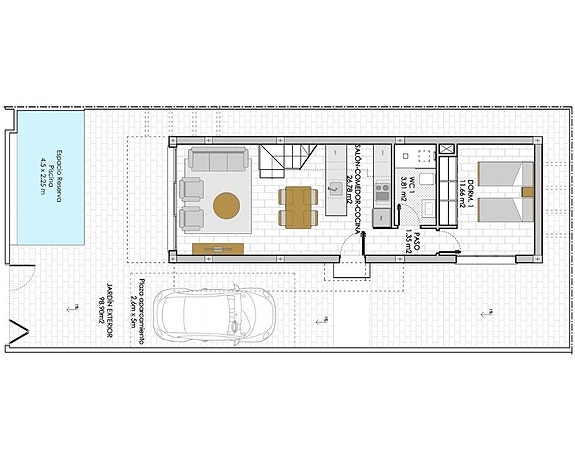
    Kun 600 meter fra stranden, i Torre del la Horadada ferdigstilles det nå 12 villaer (de fleste er solgt) med 3 soverom og 3 bad, eget privat basseng og takterrasse.
    Første etasje inneholder åpen stue/kjøkkenløsning, et soverom og et bad. Utgang til terrasse/hage med eget basseng. 
    I andre etasje er det 2 soverom og 2 bad, der hovedsoverom har ensuite bad og utgang til terrasse (10m2).
    Trapp videre opp til takterrasse. Port inn til parkering på egen tomt.
    Det er sjelden vi kan tilby en så flott villa til en slik pris - så nær strand og koselig promenade på øvresiden av  båthavnen.

    I Torre de la Horadada kan du nyte solen med mer enn 2500 soltimer i året med en gjennomsnitts temperatur på 18 ºC, og med over 4 km med spektakulære strender.
    Her er grønne områder, promenader og restauranter, noe som gjør stedet til et sted å trives hele året rundt.

    • Takterrasse på 53m2
    • Eget privat basseng inkludert i prisen
    • Gangavstand til sentrum, strand og båthavn
    • 5 minutters gange til Torre de la Horadada sentrum, sandstrender og Marina
    • 40 minutters kjøretur til Alicante flyplass
    • 10 minutters kjøretur til de prestisjetunge golfbanene i Campoamor, Villamartín, Las Ramblas, Lo Romero og La Manga Golf Club
    • 15 minutters kjøretur til Murcia flyplass
    • 30 minutters kjøretur til hovedbyene Murcia og Alicante

     

    Priser fra 281.000€ - 335.000 euro
    Hjørnebolig selges nå til 320.000 euro

    Vi i Spania1 gleder oss til å hjelpe dere videre...

     

    OM SPANIA1 AS
    SPANIA1 AS er et norsk aksjeselskap med kontor i Norge og Spania.
    Vi selger nye boliger direkte fra utbygger, og er en ledende aktør i Norge.
    Vi ser til at det blir gitt bankgaranti på alle nye prosjekter.

    Hovedpunkter

    • Kjøp direkte fra utbygger
    • Garanti på alle nybygg
    • Vi har kontor i Norge, Alicante og Malaga
    • Norske erfarne meglere
    • Oppfølging - fra kjøp til innflytting
    • Meget gode referanser fra kunder 
    • Hjelp til utleie av boligen
    • 80% finansiering i euro

    Den beste investeringen dere kan gjøre - er å velge riktig megler!
    Se våre referanser på www.spania1.no

    KJØP DIREKTE
    SPANIA1 er IKKE et fordyrende mellomledd, og dere kjøper direkte hos utbygger. 
    Vi er et bindeledd mellom dere, spansk advokat, og utbygger.
    Dere får god hjelp fra kjøp til innflytting - uten at det koster noe ekstra.

    AVGIFTER I SPANIA
    Samlede offentlige avgifter ved kjøp av bolig i Spania er ca 13-14%.
    Les mer om avgifter på vår webside.

    UTLEIE
    Boligen i Spania kan finansieres ved utleie.
    Vi har et eget servicekontor som ordner med alt det praktiske.
    Mange velger å annonsere selv, men bruker våre kontakter i Spania for vask og renhold. Dette tar vi ikke betalt for. Les om utleie på vår webside.

    TIPS
    Bruk én megler (ikke flere) til å vise dere ALLE aktuelle prosjekter.
    Da rekker vi å bli kjent med deres behov, og grunnlaget for å finne drømmeboligen øker.
    SPANIA1 vil alltid forhandle frem beste avtale på vegne av våre kunder!

     

    Publisert: 14.08.2021

  • Fasiliteter

    • Balkong/Terrasse
    • Bilvei frem
    • Garasje/P-plass
    • Golfbane
    • Offentlig vann/kloakk
    • Takterrasse
    • Utsikt
    • Innlagt strøm
    • Innlagt vann
    • Strandlinje
    • Turterreng

Ta kontakt om denne boligen