Ref: 230788946 - Dato: 04.09.2021

Vistabella, Costa Blanca sør

Flott leilighet på bakkeplan i Vistabella rett ved golfbanen - Flott fellesområde - Parkering!

Utgått annonse

Denne annonsen er ikke lenger aktiv.


    Beliggenhet

    Vistabella Golf kan betraktes som en liten landsby med alle fasiliteter, her finner man barer, resturanter og supermarked.
    Vistabella Golf ligger bare 15 minutters kjøretur unna kjøpesenteret La Zenia Boulevard, samt alle kystbyene på Orihuela Cost. Man kan også nå Alicante flyplass på en 30-minutters kjøretur.
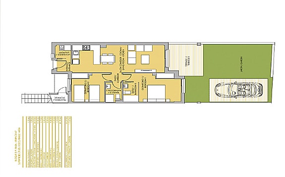
    Ny moderne leiligheter til salgs i Vistabella, Costa Blanca Sør. Vistabella Golf ligger en 5 minutters kjøretur unna Los Montesinos. Her finner man alt fra supermarkeder, barer, restauranter, butikker, og det populære torget. Torrevieja ligger 15 minutter unna med bil, her finner man de største fasilitetene som kjøpesenter, strender og badeland. Leilighetene er av høy standard og det finnes et flott fellesområdet med basseng. Leilighetene i 1. etasje har stor privat hage, mens i Øverste etasje har man en stor takterrasse. Alle leilighetene har en moderne åpen stue-kjøkken løsning, med en romslig stue med dører ut til terrassen. Pris: 2 soverom + hage fra 169.900 euro 2 soverom + takterrasse fra 179.900 euro 3 soverom + hage fra 189.900 euro 3 soverom + takterrasse fra 209.900 euro

    OM SPANIA1 AS
    SPANIA1 AS er et norsk aksjeselskap med kontor i Norge og Spania.
    Vi selger nye boliger direkte fra utbygger, og er en ledende aktør i Norge.
    Vi ser til at det blir gitt bankgaranti på alle nye prosjekter.

    Hovedpunkter

    • Bankgaranti på alle nybygg
    • Vi har kontor i Norge, Alicante og Malaga
    • Norske erfarne meglere
    • Oppfølging - fra kjøp til innflytting
    • Meget gode referanser fra kunder 
    • Hjelp til utleie av boligen
    • 80% finansiering i euro

    Den beste investeringen dere kan gjøre - er å velge riktig megler!
    Se våre referanser på www.spania1.no

    KJØP DIREKTE
    SPANIA1 er IKKE et fordyrende mellomledd, og dere kjøper direkte hos utbygger. 
    Vi er et bindeledd mellom dere, spansk advokat, og utbygger.
    Dere får god hjelp fra kjøp til innflytting - uten at det koster noe ekstra.

    AVGIFTER I SPANIA
    Samlede offentlige avgifter ved kjøp av bolig i Spania er ca 13-14%.
    Les mer om avgifter på vår webside.

    UTLEIE
    Boligen i Spania kan full-finansieres ved utleie.
    Vi har et eget servicekontor som ordner med alt det praktiske.
    Mange velger å annonsere selv, men bruker våre kontakter i Spania for vask og renhold. Dette tar vi ikke betalt for. Les om utleie på vår webside.

    TIPS
    Bruk én megler (ikke flere) til å vise dere ALLE aktuelle prosjekter.
    Da rekker vi å bli kjent med deres behov, og grunnlaget for å finne drømmeboligen øker.
    SPANIA1 vil alltid forhandle frem beste avtale på vegne av våre kunder!

     

    Publisert: 04.09.2021

  • Fasiliteter

    • Balkong/Terrasse
    • Bilvei frem
    • Garasje/P-plass
    • Golfbane
    • Offentlig vann/kloakk
    • Utsikt
    • Innlagt strøm
    • Innlagt vann
    • Turterreng

Ta kontakt om denne boligen