Ref: 240391673 - Dato: 01.12.2021

Torrevieja, La Mata, Costa Blanca sør

Moderne rekkehus med takterrasse i Torrevieja - Gangavstand til strand - Flott fellesområde

Utgått annonse

Denne annonsen er ikke lenger aktiv.


    Beliggenhet

    Torrevieja en en veletablert og populær kystby som ligger 40 km sør for flyplassen i Alicante. Byen har omlag 83.000 innbyggere og går for å være en av de mest internasjonale byene i Europa. Tidligere var dette en fiskelandsby med stor grad av saltproduksjon. Med sin unike beliggenhet mellom middelhavet og to store saltlaguner har dette området en rekke helsefordeler. Når man bor i Torrevieja er man i kort gangavstand til hvite, langstrakte sandstrender med “blå flagg” stempel, som en indikasjon på blant annet høy vannkvalitet. I nærområdet og gjerne “rett utenfor” døren finner man et stort utvalg av lokale butikker, restauranter, kafeer, kjøpesentre, grønne parker, havnen og promenaden. Hvis man er på jakt etter et område med liv året rundt og et sunt mikroklima med 320 soldager i året, kan dette være noe for deg.

    Avstand 

    • 40 min til Alicante flyplass
    • 50 min til Alicante flyplass
    • 30 min til Murcia-San Javier flyplass
    • 45 min til Cartagena
    • 10 min til La Zenia Boulevard 
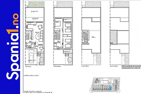
    Drømmer du om et flott REKKEHUS nær stranden? Da kan dette være noe for deg. Snakk om bra beliggenhet! Vi har gleden av å presentere et nytt boligkompleks i et lukket kompleks med basseng og grønne hager. Boligene bygges i et populært område midt i mellom La Mata-stranden og Torrevieja. Boligene strekker seg over to etasjer og kommer med en privat takterrasse. Bakkeplan består av en lys stue med plass til både spisegruppe og sofakrok, åpen og moderne kjøkkenløsning, og 1 bad. Det er direkte utgang til privat hage fra store skyvedører i stuen. Andre etasje består av 2 romslige soverom med begge innebygde garderober, hvorav et har eget bad. Fra det ene soverommet er det også en balkong. Fra andre etasje fortsetter trappen opp til den private takterrassen med fin utsikt utover nærområdet rundt og middelhavet. Innhold: 2, 3 og 4 soverom 2 bad Takterrasse Gulvvarme på bad, sovverom og kjøkken Pre-installert luftkondisjonering Fellesområde med basseng og barnebasseng Dusj på takterrassen Hage Parkeringsplass Nærhet til strender Nærhet til golf Nært restauranter og shopping Prisliste per juni 2021: Rekkehus med 2 soverom og 2 bad, takterrasse, pris fra 233.000€ Rekkehus med 3 soverom og 2 bad, takterrasse, pris fra 268.000€ Rekkehus med 4 soverom og 2 bad, takterrasse, pris 355.000€ (kun èn til salgs av denne typen).

    Om boligen 
    • Rekkehus 
    • Stue med åpen kjøkkenløsning 
    • 2 soverom 
    • 2 bad
    • Terrasse 
    • Takterrasse 


    Fellesområde 
    • Hage
    • Basseng og barnebasseng
    • Treningsområde.

    Prisliste 
    • Rekkehus med 2 soverom fra 233.000 euro
    • Rekkehus med 3 soverom fra 268.000 euro 
    • Rekkehus med 4 soverom fra 355.000 euro

    OM SPANIA1 AS
    SPANIA1 AS er et norsk aksjeselskap med kontor i Norge og Spania.
    Vi selger nye boliger direkte fra utbygger, og er en ledende aktør i Norge.
    Vi ser til at det blir gitt bankgaranti på alle nye prosjekter.

    Hovedpunkter

    • Garanti på alle nybygg
    • Vi har kontor i Norge, Alicante og Malaga
    • Norske erfarne meglere
    • Oppfølging - fra kjøp til innflytting
    • Meget gode referanser fra kunder 
    • Hjelp til utleie av boligen
    • Inntil 80% finansiering i euro

    Den beste investeringen dere kan gjøre - er å velge riktig megler!
    Se våre referanser på www.spania1.no

    KJØP DIREKTE
    SPANIA1 er IKKE et fordyrende mellomledd, og dere kjøper direkte hos utbygger. 
    Vi er et bindeledd mellom dere, spansk advokat, og utbygger.
    Dere får god hjelp fra kjøp til innflytting - uten at det koster noe ekstra.

    AVGIFTER I SPANIA
    Samlede offentlige avgifter ved kjøp av bolig i Spania er ca 13-14%.
    Les mer om avgifter på vår webside.

    UTLEIE
    Boligen i Spania kan finansieres ved utleie.
    Vi har et eget servicekontor som ordner med alt det praktiske.
    Mange velger å annonsere selv, men bruker våre kontakter i Spania for vask og renhold. Dette tar vi ikke betalt for. Les om utleie på vår webside.

    TIPS
    Bruk én megler (ikke flere) til å vise dere ALLE aktuelle prosjekter.
    Da rekker vi å bli kjent med deres behov, og grunnlaget for å finne drømmeboligen øker.
    SPANIA1 vil alltid forhandle frem beste avtale på vegne av våre kunder!

    Spania1 har sitt hovedfokus på Orihuela Costa og områdene sydover:
    Punta Prima, Playa Flamenca, La Zenia, Cabo Roig, Villamartin, Campoamor, Mil Palmeras, Torre de la Horadada, Pilar de la Horadada og San Pedro del Pinatar.

    Publisert: 01.12.2021

  • Fasiliteter

    • Balkong/Terrasse
    • Bilvei frem
    • Garasje/P-plass
    • Golfbane
    • Offentlig vann/kloakk
    • Takterrasse
    • Utsikt
    • Innlagt strøm
    • Innlagt vann
    • Gåavstand til strand
    • Turterreng

Ta kontakt om denne boligen