Ref: 245530692 - Dato: 20.01.2022

Villamartin, Costa Blanca sør

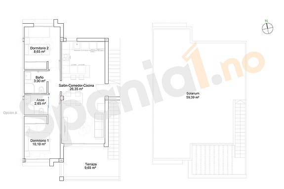
La Zenia- Penthouse med 2 soverom og privat takterrasse på 43m2 i attraktivt område!

Utgått annonse

Denne annonsen er ikke lenger aktiv.


    Beliggenhet

    Villamartin er et meget attraktivt boligområde som ligger rett på oversiden av La Zenia og mellom Playa Flamenca og Campoamor. Nærområdet kan by på et godt utvalg av hyggelige cafeèr, butikker og spisesteder. Området er spesielt kjent for sin flotte golf bane, Villamartin Golf. Det er også flere flotte strender innen en 10 minutter kjøring med “blå flagg” stempel, som er en indikasjon på blant annet høy vannkvalitet. Enten du vil sykle, ta en shoppingrunde, nyte en lunsj på Villamartin Plaza eller spille golf, kan dette stedet passe deg. Området er perfekt for familier med barn, enten det gjelder ferie eller for å bo her hele året. Her er det mange forskjellige ulike nasjonaliteter.

    Avstand 
    • 45 minutter til Alicante flyplass
    • 40 minutter til Murcia flyplass 
    • 15 minutter til Torrevieja 
    • 55 minutter til Alicante sentrum 
    • 40 minutter til Cartagena 

    Aire Residencial er et nytt og spennende prosjekt, som har en særdeles attraktiv beliggenhet. Leilighetskomplekset vil bestå av totalt 94 leiligheter fordelt i 3 blokker, og her kan du velge mellom leiligheter med 2-3 soverom, 1-2 bad, hage, terrasse eller takterrasse. Leilighetene leveres romslige stuer med åpen kjøkkenløsning, innebygde garderobeskap på soverom og en stilfull finish.

    Med et fellesområde på 3.300m2 med 2 svømmebasseng, boblebad, 2 petancabaner og gratis wifi, vil du enkelt kunne finne noe som passer for hele familien. 

    Innen en radius på 5 kilometer har du tilgang til 3 ulike 18-hulls golfbaner, og det er kun en kort tur til et av spanias største kjøpesentre La Zenia Boulevard og de vakre strendene Playa Flamenca og La Zenia. 

    Leilighetene leveres med 1 parkeringsplass i lukket garasjeanlegg, og tilbyr også 2 forskjellige typer møbelpakker, som inneholder alt man skulle behøve (fra sofa til bestikk).


    Om boligen 
    • Leilighet 
    • Stue med åpen kjøkkenløsning
    • 3 soverom
    • 2 bad 
    • Terrasse 
    • Takterrasse 43m2
    • Parkering 

    Fellesområde
    • 2 svømmebasseng
    • Boblebad
    • 2 petancabaner
    • Gratis wifi

    OM SPANIA1 AS
    SPANIA1 AS er et norsk aksjeselskap med kontor i Norge og Spania.
    Vi selger nye boliger direkte fra utbygger, og er en ledende aktør i Norge.
    Vi ser til at det blir gitt bankgaranti på alle nye prosjekter.

    Hovedpunkter

    • Bankgaranti på alle nybygg
    • Vi har kontor i Norge, Alicante og Malaga
    • Norske erfarne meglere
    • Oppfølging - fra kjøp til innflytting
    • Meget gode referanser fra kunder 
    • Hjelp til utleie av boligen
    • 80% finansiering i euro

    Den beste investeringen dere kan gjøre - er å velge riktig megler!
    Se våre referanser på www.spania1.no

    KJØP DIREKTE
    SPANIA1 er IKKE et fordyrende mellomledd, og dere kjøper direkte hos utbygger. 
    Vi er et bindeledd mellom dere, spansk advokat, og utbygger.
    Dere får god hjelp fra kjøp til innflytting - uten at det koster noe ekstra.

    AVGIFTER I SPANIA
    Samlede offentlige avgifter ved kjøp av bolig i Spania er ca 13-14%.
    Les mer om avgifter på vår webside.

    UTLEIE
    Boligen i Spania kan full-finansieres ved utleie.
    Vi har et eget servicekontor som ordner med alt det praktiske.
    Mange velger å annonsere selv, men bruker våre kontakter i Spania for vask og renhold. Dette tar vi ikke betalt for. Les om utleie på vår webside.

    TIPS
    Bruk én megler (ikke flere) til å vise dere ALLE aktuelle prosjekter.
    Da rekker vi å bli kjent med deres behov, og grunnlaget for å finne drømmeboligen øker.
    SPANIA1 vil alltid forhandle frem beste avtale på vegne av våre kunder!

     

    Publisert: 20.01.2022

  • Fasiliteter

    • Balkong/Terrasse
    • Bilvei frem
    • Garasje/P-plass
    • Golfbane
    • Offentlig vann/kloakk
    • Takterrasse
    • Utsikt
    • Innlagt strøm
    • Innlagt vann
    • Turterreng

Ta kontakt om denne boligen