Ref: 261024204 - Dato: 04.06.2022

Benijofar, Costa Blanca sør

Moderne villa i QUESADA - Nær den norske skolen - Flott uteplass med basseng og takterasse - Ferdig sommeren 2023

Utgått annonse

Denne annonsen er ikke lenger aktiv.


    Beliggenhet

    Benijofar er en nydelig liten landsby med i overkant av 4000 fastboende. Byens sentrum baserer seg rundt et koselig torg. Man har turstier, parker, idrettsanlegg med utendørs svømmebasseng, tapas-barer og restauranter, matbutikk, apotek, banker og butikker. Alt man trenger er innenfor gangavstand. Ønsker man tilgang til en større by har man både Torrevieja og Guardamar en liten biltur unna, her ligger strendene på rekke og rad.

    Avstand 

    • 35 minutter fra Alicante flyplass
    • 45 time fra Alicante sentum 
    • 50 minutter fra Murcia-San Javier flyplass
    • 15 minutter fra Torrevieja
    • 50 minutter fra Cartagena 
    • 20 minutter fra La Zenia Boulevard 

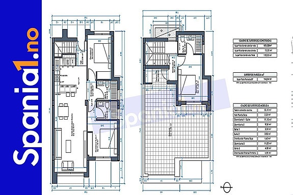
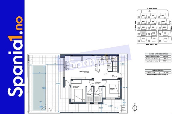
    Vi har gleden av å presentere Villas de la Vega Style II i Benijofar. 15 uavhengige villaer med privat basseng, vendt mot vest. Visningshuset er under bygging og skal stå ferdig i juni. Levering av villaene vil være i august 2023. Hver villa har 2 soverom i første etasje, ett oppe med mulighet for et fjerde soverom. En lekker stue med skyvedører ut til hagen, og en åpen kjøkkenløsning.

    Inkludert i prisen er også privat basseng på 7x2,5 meter, solcelleanlegg, hvitevarer, aircondition, komplette bad, elektriske persienner, vannrensefilter på kjøkkenet, lyspakke inne og ute. 


    Om boligen 

    • Villa
    • Stue med åpen kjøkkenløsning 
    • 3 soverom
    • 2 bad 
    • Stor uteplass med basseng 7x2,5m
    • Solcelleanlegg, hvitevarer, aircondition, komplette bad, elektriske persienner, vannrensefilter på kjøkkenet, lyspakke inne og ute. 

    Ferdigstillelse 

    • August 2023

    OM SPANIA1 AS
    SPANIA1 AS er et norsk aksjeselskap med kontor i Norge og Spania.
    Vi selger nye boliger direkte fra utbygger, og er en ledende aktør i Norge.
    Vi ser til at det blir gitt bankgaranti på alle nye prosjekter.

    Hovedpunkter

    • Garanti på alle nybygg
    • Vi har kontor i Norge, Alicante og Malaga
    • Norske erfarne meglere
    • Oppfølging - fra kjøp til innflytting
    • Meget gode referanser fra kunder 
    • Hjelp til utleie av boligen
    • Inntil 80% finansiering i euro

    Den beste investeringen dere kan gjøre - er å velge riktig megler!
    Se våre referanser på www.spania1.no

    KJØP DIREKTE
    SPANIA1 er IKKE et fordyrende mellomledd, og dere kjøper direkte hos utbygger. 
    Vi er et bindeledd mellom dere, spansk advokat, og utbygger.
    Dere får god hjelp fra kjøp til innflytting - uten at det koster noe ekstra.

    AVGIFTER I SPANIA
    Samlede offentlige avgifter ved kjøp av bolig i Spania er ca 13-14%.
    Les mer om avgifter på vår webside.

    UTLEIE
    Boligen i Spania kan finansieres ved utleie.
    Vi har et eget servicekontor som ordner med alt det praktiske.
    Mange velger å annonsere selv, men bruker våre kontakter i Spania for vask og renhold. Dette tar vi ikke betalt for. Les om utleie på vår webside.

    TIPS
    Bruk én megler (ikke flere) til å vise dere ALLE aktuelle prosjekter.
    Da rekker vi å bli kjent med deres behov, og grunnlaget for å finne drømmeboligen øker.
    SPANIA1 vil alltid forhandle frem beste avtale på vegne av våre kunder!

    Spania1 har sitt hovedfokus på Orihuela Costa og områdene sydover:
    Punta Prima, Playa Flamenca, La Zenia, Cabo Roig, Villamartin, Campoamor, Mil Palmeras, Torre de la Horadada, Pilar de la Horadada og San Pedro del Pinatar.

    Publisert: 04.06.2022

  • Fasiliteter

    • Balkong/Terrasse
    • Bilvei frem
    • Garasje/P-plass
    • Golfbane
    • Offentlig vann/kloakk
    • Takterrasse
    • Utsikt
    • Innlagt strøm
    • Innlagt vann
    • Turterreng

Ta kontakt om denne boligen