Calanova Golf, Costa del Sol

Nylansering! Luksuriøs penthouse med 65 m² terrasse og panorama havutsikt. Kun 5 min fra La Cala de Mijas.

Pris
NOK 5.184.000 EUR 450.000
Størrelse
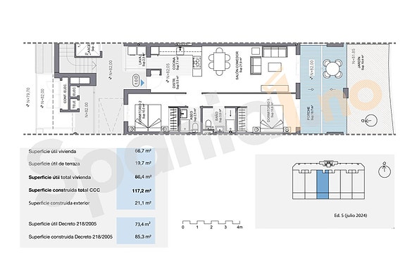
61 m²
Soverom
2
Fasiliteter
Takterrasse
P-plasser
1
  • Om prosjektet

    Dette prosjektet består av 6 bygninger med totalt 108 leiligheter der man kan velge mellom to eller tre soverom. Bygning 1, 2 og 3 har orientering mot sørvest og har fantastisk panorama havutsikt. Bygning 4, 5 og 6 har orientering mot nordøst og nydelig utsikt over Calanova golfbane og Sierra de Mijas fjell. Det er et lukket boligkompleks med flotte fellesområder og tropiske hager.


    Om boligen 

    • Penthouse
    • 2 soverom
    • 2 bad
    • Tilpassede garderober
    • Klimaanlegg til kjøling og oppvarming
    • Terrasser totalt 65m²
    • Åpen kjøkkenløsning
    • Kjøkken er fullt møblert og utstyrt med hvitevarer av høy kvalitet
    • Høy kvalitet på interiøret
    • Alarmsystem
    • Parkeringplass

    Fellesområder

    • Svømmebasseng
    • Barnebasseng
    • Badstue
    • Chill-out område
    • Treningsstudio
    • Tropiske hager
    • Co-Working

    Ferdigstillelse 
    2. kvartal 2025

    Vil du vite mer?

    Ta kontakt med Spania1 AS  for å få prospekt, plantegninger, pris og oppdatert tilgjengelighet.

    Vi i Spania1 gleder oss til å hjelpe dere videre i prosessen!
  • La Cala de Mijas

    Dette luksuriøse boligprosjektet har en unik beliggenhet med fantastisk hav og golfutsikt, kun fem minutter fra  La Cala de Mijas sentrum. La Cala de Mijas ligger midt mellom Malaga og Marbella og denne hyggelig byen er kjent for et stort utvalg av restauranter og for den 7 km lange strandpromenaden. Her kan du velge mellom spanske chiringuitos og de litt mer luksuriøse strandklubbene. La Cala er en liten, intim by med hyggelig og avslappende atmosfære, et perfekt feriested for barnefamilier og voksne. Dette området er også et paradis for golfentusiaster. La Noria Golf ligger sentralt i La Cala, bare få minutter unna ligger Calanova Golf, La Cala Golf og den velkjente Chaparral Golf.

    Avstander

    • 30 minutter til Malaga flyplass
    • 20 minutter til Puerto Banus
    • 20 minutter til Marbella 
    • 15 minutter til Fuengirola
    • Balansert ventilasjon
    • Balkong/Terrasse
    • Bilvei frem
    • Garasje/P-plass
    • Golfbane
    • Lademulighet
    • Offentlig vann/kloakk
    • Takterrasse
    • Utsikt
    • Vaktmester-/vektertjeneste
    • Innlagt strøm
    • Innlagt vann
    • Turterreng
  • SPANIA1 AS er et norsk aksjeselskap med kontor i Norge og Spania.
    Vi selger nye boliger direkte fra utbygger, og er en ledende aktør i Norge.
    Vi ser til at det blir gitt bankgaranti på alle nye prosjekter.

    Hovedpunkter

    • Kjøp direkte fra utbygger
    • Garanti på alle nybygg
    • Vi har kontor i Norge, Alicante og Malaga
    • Norske erfarne meglere
    • Oppfølging - fra kjøp til innflytting
    • Meget gode referanser fra kunder 
    • Hjelp til utleie av boligen
    • 80% finansiering i euro

    Den beste investeringen dere kan gjøre - er å velge riktig megler!
    Se våre referanser.

    KJØP DIREKTE

    SPANIA1 er IKKE et fordyrende mellomledd, og dere kjøper direkte hos utbygger. 
    Vi er et bindeledd mellom dere, spansk advokat, og utbygger.
    Dere får god hjelp fra kjøp til innflytting - uten at det koster noe ekstra.

    AVGIFTER I SPANIA

    Samlede offentlige avgifter ved kjøp av bolig i Spania er ca 13-14%.
    Les mer om avgifter på vår webside.

    UTLEIE

    Boligen i Spania kan finansieres ved utleie.
    Vi har et eget servicekontor som ordner med alt det praktiske.
    Mange velger å annonsere selv, men bruker våre kontakter i Spania for vask og renhold. Dette tar vi ikke betalt for. Les om utleie på vår webside.

    TIPS

    Bruk én megler (ikke flere) til å vise dere ALLE aktuelle prosjekter.
    Da rekker vi å bli kjent med deres behov, og grunnlaget for å finne drømmeboligen øker.
    SPANIA1 vil alltid forhandle frem beste avtale på vegne av våre kunder!

Publisert: 22.09.2022

Finn ID: 273994157

ID: CALANP22