Pilar de la Horadada
-
Lekker leilighet på topplan med utsikt, 2 soverom og stor takterrasse i Los Balcones. Helt unikt fellesområde med grønne hager og basseng
Boligkompleks med flotte fellesområder og stort basseng omringet med grønn beplantning. Her er det valgmulighet mellom enten leilighet på bakkeplan med egen hage og leilighet på topplan med egen akterrasse.
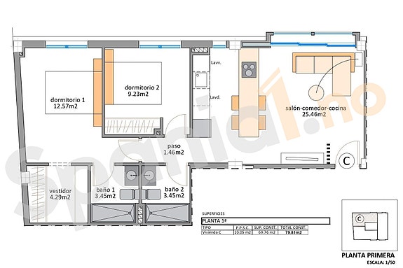
Boligene består av 2 til 3 gode soverom med innebygde garderober, 2 delikate bad (hvorav 1 en-suite) med hver sin dusj og åpent kjøkken med en lys og koselig stue hvor det er plass til både spisegruppe og sofakrok. Det er store vindusflater med skyvedør ut mot terrasse som gir en god romfølelse og mye naturlig lys. Leilighetene på bakkeplan har en privat hage og leilighetene på topplan har en stor privat takterrasse.
Boligen- 2 soverom
- 2 bad
- Takterrasse
Los Balcones er et veletablert område 45 minutter sør for Alicante flyplass og 30 minutter nord for Corvera (Murcia) flyplass. Dette prosjektet ligger på en liten høyde med flott utsikt mot saltsjøene og Torrevieja. Det er gangavstand til matbutikk, restauranter, cafeer, spa-hotell med gym og innendørs basseng, tennisbane mm. Det tar cirka 5 minutter å kjøre til nærmeste strender og rundt 10 minutter til det store kjøpesenteret i La Zenia.
- Balkong/Terrasse
- Bilvei frem
- Garasje/P-plass
- Golfbane
- Offentlig vann/kloakk
- Utsikt
- Innlagt strøm
- Innlagt vann
- Turterreng
SPANIA1 AS er et norsk aksjeselskap med kontor i Norge og Spania.
Vi selger nye boliger direkte fra utbygger, og er en ledende aktør i Norge.
Vi ser til at det blir gitt bankgaranti på alle nye prosjekter.Hovedpunkter
- Kjøp direkte fra utbygger
- Garanti på alle nybygg
- Vi har kontor i Norge, Alicante og Malaga
- Norske erfarne meglere
- Oppfølging - fra kjøp til innflytting
- Meget gode referanser fra kunder
- Hjelp til utleie av boligen
- 80% finansiering i euro
Den beste investeringen dere kan gjøre - er å velge riktig megler!
Se våre referanser.KJØP DIREKTE
SPANIA1 er IKKE et fordyrende mellomledd, og dere kjøper direkte hos utbygger.
Vi er et bindeledd mellom dere, spansk advokat, og utbygger.
Dere får god hjelp fra kjøp til innflytting - uten at det koster noe ekstra.AVGIFTER I SPANIA
Samlede offentlige avgifter ved kjøp av bolig i Spania er ca 13-14%.
Les mer om avgifter på vår webside.UTLEIE
Boligen i Spania kan finansieres ved utleie.
Vi har et eget servicekontor som ordner med alt det praktiske.
Mange velger å annonsere selv, men bruker våre kontakter i Spania for vask og renhold. Dette tar vi ikke betalt for. Les om utleie på vår webside.TIPS
Bruk én megler (ikke flere) til å vise dere ALLE aktuelle prosjekter.
Da rekker vi å bli kjent med deres behov, og grunnlaget for å finne drømmeboligen øker.
SPANIA1 vil alltid forhandle frem beste avtale på vegne av våre kunder!Tilsvarende boliger
-
NOK 2.645.137 EUR 239.900
-
Pilar de la Horadada
Toppleilighet med stor takterrasse - 57m2 | Fellesområde med basseng | Garasje
NOK 2.645.137 EUR 239.900 -
Pilar de la Horadada
SOLGT! Toppleilighet med stor takterrasse - 57m2 | Fellesområde med basseng | Garasje
NOK 2.645.137 EUR 239.900 -
San Miguel de Salinas
Nyhet! Moderne leilighet med nydelige fellesområder | 2 soverom og 2 bad|
NOK 2.645.137 EUR 239.900
Publisert: 07.12.2022
Finn ID: 283716077
ID: SP1-89347