Marbella øst, Costa del Sol

SOLGT! Eksklusiv leilighet | Terrasse med basseng | 4 soverom | Flotte fellesområder | Havutsikt!

Pris
NOK 14.792.625 EUR 1.215.000
Størrelse
178 m²
Soverom
4
P-plasser
2
Beliggenhet
Gåavstand til strand
  • Om prosjektet 
    Denne prosjektet tilbyr et utvalg av leiligheter med 2, 3 og 4 soverom, samt 4 og 5 soveroms tomannsboliger.
    Fellesområdene og tjenestene som er tilgjengelige er for mange å liste opp, men inkluderer bl.a. 5 svømmebassenger, et treningsstudio, spa, kaffeområde, co-working og Concierge-tjenester.
    Det er 20 fantastiske tomannsboliger, alle med romslige terrasser og private bassenger, og 48 luksusleiligheter som består av leiligheter på bakkeplan med hager og penthouse-leiligheter med takterrasser, alle med eget basseng.Leilighetene har store terrasser, havutsikt og luksuriøse kvaliteter. 

    Om boligen 

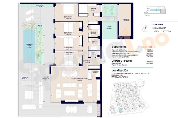
    • Leilighet
    • 4 soverom
    • 2 bad
    • Terrasse 146m² med basseng
    • Fullt møblert og utstyrt kjøkken
    • Vaskerom
    • Klimaanlegg varm og kald
    • Tilpasset garderober
    • 2 garasjeplasser
    • Bod
    Fellesområder
    • Spa
    • Treningsstudio
    • 5 svømmebassenger
    • SPA
    • Kaffeområde
    • Co-working
    • Concierge-tjenester
    Ferdigstillese 1 kvartal 2025

    Vil du vite mer?

    Ta kontakt med Spania1 for å få prospekt, plantegninger, pris og oppdatert tilgjengelighet.

    Vi i Spania1 gleder oss til å hjelpe dere videre i prosessen!
  • Marbella Øst

    Dette luksuriøse boligprosjektet ligger i øst Marbella, omgitt av Santa Clara Golfbane, kort avstand fra stranden, alle lokale fasiliteter og en kort kjøretur fra Malaga flyplass. Marbella sentrum ligger bare 10 minutter unna.
    Marbella er også kjent for sin pittoreske gamleby, et godt utvalg av restauranter, vakre strender, luksuriøse butikker og uteliv.
    I dette området er det stor etterspørsel etter boliger for utleie - spesielt nye og moderne boliger.

    Avstand 

    • 35 minutter til Malaga flyplass
    • 10 minutter til Marbella
    • 15 minutter til Puerto Banus
    • 30 minutter til Estepona
    • Balkong/Terrasse
    • Bilvei frem
    • Garasje/P-plass
    • Golfbane
    • Lademulighet
    • Offentlig vann/kloakk
    • Utsikt
    • Vaktmester-/vektertjeneste
    • Innlagt strøm
    • Innlagt vann
    • Gåavstand til strand
    • Turterreng
  • SPANIA1 AS er et norsk aksjeselskap med kontor i Norge og Spania.
    Vi selger nye boliger direkte fra utbygger, og er en ledende aktør i Norge.
    Vi ser til at det blir gitt bankgaranti på alle nye prosjekter.

    Hovedpunkter

    • Kjøp direkte fra utbygger
    • Garanti på alle nybygg
    • Vi har kontor i Norge, Alicante og Malaga
    • Norske erfarne meglere
    • Oppfølging - fra kjøp til innflytting
    • Meget gode referanser fra kunder 
    • Hjelp til utleie av boligen
    • 80% finansiering i euro

    Den beste investeringen dere kan gjøre - er å velge riktig megler!
    Se våre referanser.

    KJØP DIREKTE

    SPANIA1 er IKKE et fordyrende mellomledd, og dere kjøper direkte hos utbygger. 
    Vi er et bindeledd mellom dere, spansk advokat, og utbygger.
    Dere får god hjelp fra kjøp til innflytting - uten at det koster noe ekstra.

    AVGIFTER I SPANIA

    Samlede offentlige avgifter ved kjøp av bolig i Spania er ca 13-14%.
    Les mer om avgifter på vår webside.

    UTLEIE

    Boligen i Spania kan finansieres ved utleie.
    Vi har et eget servicekontor som ordner med alt det praktiske.
    Mange velger å annonsere selv, men bruker våre kontakter i Spania for vask og renhold. Dette tar vi ikke betalt for. Les om utleie på vår webside.

    TIPS

    Bruk én megler (ikke flere) til å vise dere ALLE aktuelle prosjekter.
    Da rekker vi å bli kjent med deres behov, og grunnlaget for å finne drømmeboligen øker.
    SPANIA1 vil alltid forhandle frem beste avtale på vegne av våre kunder!

Publisert: 13.04.2024

Finn ID: 348046056

ID: SP1-CS36332