Mijas Costa, El Chaparral, Costa del Sol

Nydelig rekkehus med 3 soverom | Stor hage med mulighet for privat basseng | Havutsikt | Gangavstand til strand!

Pris
NOK 11.124.455 EUR 957.000
Størrelse
132 m²
Soverom
3
Fasiliteter
Takterrasse
P-plasser
2
  • Spania1 har gleden av å presentere et eksklusivt prosjekt med 69 rekkehus.
    Disse boligene har et areal fra 205 til 338 m², hvor du kan velge mellom 3-4 soverom. Terrassene varierer fra 35 til 107 m², og hver bolig har en privat hage som varier fra 30 til 317m².
    Hver bolig har også 2 parkeringsplasser og en bod. Fellesområdene inkluderer 2 svømmebassenger, tyrkisk bad, badstue, et fullt utstyrt treningsstudio, coworking-område, grillområde og mye mer.
    Ved kjøp av bolig i dette prosjektet, får man også 5 års medlemskap i Chaparral Golf Club. 

    Om boligen

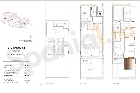
    • Rekkehus
    • 2 etasjer + kjeller
    • 4 soverom
    • 2 bad + toalett
    • Terrasser på 43 m²
    • Hage på 40 m²
    • Aircondition kaldt og varmt
    • Fullt møblert og utstyrt kjøkken
    • Mulighet for privat basseng (ikke inkludert i prisen)

    Fellesområder

    • 2 svømmebassenger
    • Tyrkisk bad
    • Badstue
    • Fullt utstyrt treningsstudio
    • Co-working-område
    • Grillområde og mye mer

    Vil du vite mer?
    Ta kontakt med oss i Spania1 for mer informasjon.  
    Vi gleder oss til å hjelpe dere videre i prosessen!

    Visning
    Ønsker dere å se denne og andre anbefalinger fra Spania1?
    Bli med på visningstur - vi dekker 3 netter på hotell.
    Alle våre meglere er norske. Ingen kjøpepress.

  • Mijas Costa, El Chaparal

    El Chaparral er en urbanisasjon som ligger på Mijas Costa, en del av Costa del Sol i Andalucía, Spania. Dette området er kjent for å tilby vakre boliger nær kysten og har et rolig og behagelig miljø. El Chaparral har også flotte strender, golfbaner og turistfasiliteter. El Chaparral Golf Club er en kjent golfbane i området. Den tilbyr en utfordrende 18-hulls bane og har vakker utsikt over Middelhavet. Det er også lokale fasiliteter som restauranter, barer, butikker og supermarkeder i nærheten, som gjør det praktisk for beboerne.

    Dette eksklusive boligprosjektet ligger kun 2 min spasertur fra en av de beste golfbaner på Costa del Sol, Chaparral Golf Club med kafeteria, bar og restaurant åpent hele året og kun 15 min gange til standen.
                    

    Avstander:

    • 2 min gangavstand til Chaparal Golf Club
    • 15 min gangavstand til strand
    • 7 min til sentrum av La Cala de Mijas
    • 10 min til sentrun av Fuengirola
    • 20 min til sentrum av Marbella
    • 25 min til Malaga flyplassen
    • Balansert ventilasjon
    • Balkong/Terrasse
    • Bilvei frem
    • Garasje/P-plass
    • Golfbane
    • Lademulighet
    • Offentlig vann/kloakk
    • Takterrasse
    • Utsikt
    • Innlagt strøm
    • Innlagt vann
    • Gåavstand til strand
    • Turterreng
  • SPANIA1 AS er et norsk aksjeselskap med kontor i Norge og Spania.
    Vi selger nye boliger direkte fra utbygger, og er en ledende aktør i Norge.
    Vi ser til at det blir gitt bankgaranti på alle nye prosjekter.

    Hovedpunkter

    • Kjøp direkte fra utbygger
    • Garanti på alle nybygg
    • Vi har kontor i Norge, Alicante og Malaga
    • Norske erfarne meglere
    • Oppfølging - fra kjøp til innflytting
    • Meget gode referanser fra kunder 
    • Hjelp til utleie av boligen
    • 80% finansiering i euro

    Den beste investeringen dere kan gjøre - er å velge riktig megler!
    Se våre referanser.

    KJØP DIREKTE

    SPANIA1 er IKKE et fordyrende mellomledd, og dere kjøper direkte hos utbygger. 
    Vi er et bindeledd mellom dere, spansk advokat, og utbygger.
    Dere får god hjelp fra kjøp til innflytting - uten at det koster noe ekstra.

    AVGIFTER I SPANIA

    Samlede offentlige avgifter ved kjøp av bolig i Spania er ca 13-14%.
    Les mer om avgifter på vår webside.

    UTLEIE

    Boligen i Spania kan finansieres ved utleie.
    Vi har et eget servicekontor som ordner med alt det praktiske.
    Mange velger å annonsere selv, men bruker våre kontakter i Spania for vask og renhold. Dette tar vi ikke betalt for. Les om utleie på vår webside.

    TIPS

    Bruk én megler (ikke flere) til å vise dere ALLE aktuelle prosjekter.
    Da rekker vi å bli kjent med deres behov, og grunnlaget for å finne drømmeboligen øker.
    SPANIA1 vil alltid forhandle frem beste avtale på vegne av våre kunder!

Publisert: 26.08.2025

Finn ID: 423736156

ID: SP1-CB762411