Santiago de la Ribera, Costa Calida

Moderne villa med 3 soverom og privat basseng - kun 750 meter fra stranden i Santiago de la Ribera

Pris
NOK 7.266.134 EUR 659.000
Størrelse
120 m²
Soverom
3
Fasiliteter
Takterrasse
Beliggenhet
Gåavstand til strand
  • Ny moderne villa med 3 soverom og privat basseng, beliggende kun 750 meter fra Mar Menor-strendene i Santiago de la Ribera. Høy standard, gjennomtenkt planløsning og gode solforhold. Kort vei til strand, butikker, restauranter og golfbaner.

    Disse moderne frittstående villaene ligger i et attraktivt boligområde i Santiago de la Ribera, kun 750 meter fra stranden ved Mar Menor. Området er kjent for sitt behagelige middelhavsklima, lave tempo og gode servicetilbud – et populært valg både for helårsbolig, feriebruk og som utleieobjekt.
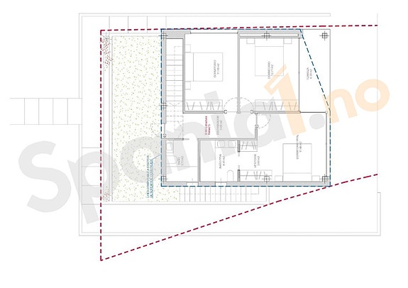
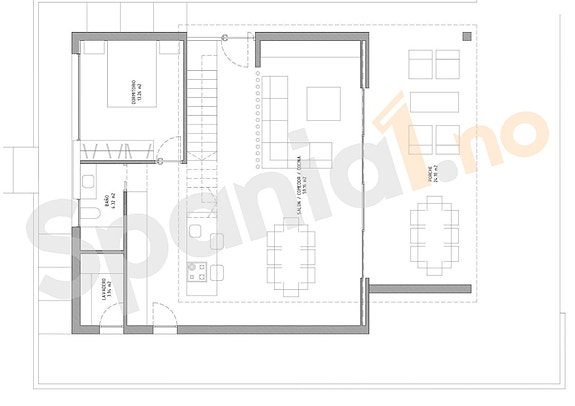
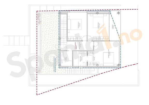
    Villaene er fordelt over to etasjer med lys og funksjonell planløsning. I første etasje ligger et av soverommene samt et fullt utstyrt bad, noe som gjør boligen praktisk og fleksibel for både familier og besøkende. Totalt har boligen tre soverom og tre bad, alle med en-suite løsning.
    Stue og kjøkken er utformet i åpen plan og har store vindusflater som gir godt med naturlig lys og direkte tilgang til hage og basseng. Kjøkkenet leveres fullt møblert med hvitevarer inkludert. Fra andre etasje er det utgang til en terrasse som egner seg godt for soling og avslapning.
    Uteområdet består av privat hage, terrasse og eget svømmebasseng. Parkering på egen tomt leveres med motorisert port. Villaene har moderne kvaliteter som forsterket sikkerhetsdør, motoriserte persienner, gulvvarme på badene, preinstallasjon for klimaanlegg via kanaler, samt to solcellepaneler med mikroinverter.

    Beliggenheten gir enkel tilgang til strender, marina, butikker og restauranter. Det er kort vei til flere golfbaner, og flyplassen i Murcia (tidligere San Javier) ligger bare noen minutter unna. Et svært godt område for både ferie og helårsbruk.
    Dette er en mulighet til å sikre seg en moderne og lettstelt villa med høy standard nær sjøen – innflytting i 2026.

    Om boligen 

    • 3 soverom
    • 3 bad (alle en-suite)
    • Bygget areal: 147 m²
    • Bruksareal: 120 m²
    • Terrasseareal: 116 m²
    • Tomt: ca. 334 m²
    • Privat svømmebasseng 17 m²
    • Privat parkering på tomten
    • Takterrasse
    • Kjøkken med hvitevarer
    • Motoriserte persienner
    • Gulvvarme på bad
    • Preinstallasjon for A/C
    • 2 solcellepaneler
    • Strand ca. 750 m
    • Nær golf og servicetilbud

    Inkludert i prisen
    :
    • Komplett pakke med hvitevarer: stekeovn, induksjonstopp, mikrobølgeovn, ventilator, kjøleskap og vaskemaskin
    • Aerotermisk varmtvannssystem + to solcellepaneler med mikroinverter
    • Motoriserte persienner i alle rom
    • LED-lys innvendig
    • LED-strips utendørs terrassetak og i master-soverom / TV-område
    • Gulvvarme i alle tre bad
    • Designkjøkken fullt utstyrt
    • Designbad med møbler, speil og innebygd toalett på hovedbad
    • Dusjer med termostatbatteri (alle tre bad)
    • Innredede garderober med skuffer i alle rom
    • PVC-vinduer med solfaktor og argongass
    • Privat basseng + dusj med soloppvarmet vann
    • Privat parkering med motorisert port
    • Video-intercom med hjemautomatisering (smart home)
    • Innvendige fliser 90×90 cm
    • Kunstgress + keramiske fliser på bassengterrassen

    Tilvalg:

    • 2 stk. LG klimaanlegg – €5.900
    • Utendørs fasade- og hagebelysning – €950
    • Plante-/hagepakke – €1.950
    • Automatisk vanningsanlegg – €760
    • Sommerkjøkken med hvitevarer – €11.500
    • Ekstra interiørbelysning stue/trapp – €650
    • Automatisering av persienner – €1.450
    Ferdigstilt april 2027

    Vil du vite mer?
    Ta kontakt med oss i Spania1 for mer informasjon.  
    Vi gleder oss til å hjelpe dere videre i prosessen!

    Visning
    Ønsker dere å se denne og andre anbefalinger fra Spania1?
    Bli med på visningstur - vi dekker 3 netter på hotell.
    Alle våre meglere er norske. Ingen kjøpepress.

  • Kystbyen Santiago de la Ribera ligger i San Javier kommune på Costa Calida, Murcia et stykke nord på kystlinja i Mar Menor bukta. Med en 4 km lang strand og tilhørende promenade er stedet naturlig nok, et svært populært sted for turister. Som andre steder ved Mar Menor bukta har Santiago de la Ribera rike mattradisjoner hvor fisk og sjømat er grunnlaget for de deiligste retter. Rett nord for byen ligger Academia General del Aire som er en viktig militærbase i tilknytning til flyplassen San Javier, Murcia. 

    Avstander 

    • 50 minutter til Alicante flyplass
    • 35 minutter til Murcia flyplass 
    • 30 minutter til Torrevieja 
    • 60 minutter til Alicante sentrum 
    • 25 minutter til Cartagena 
    • Balkong/Terrasse
    • Bilvei frem
    • Garasje/P-plass
    • Golfbane
    • Offentlig vann/kloakk
    • Takterrasse
    • Utsikt
    • Innlagt strøm
    • Innlagt vann
    • Gåavstand til strand
    • Turterreng
  • SPANIA1 AS er et norsk aksjeselskap med kontor i Norge og Spania.
    Vi selger nye boliger direkte fra utbygger, og er en ledende aktør i Norge.
    Vi ser til at det blir gitt bankgaranti på alle nye prosjekter.

    Hovedpunkter

    • Kjøp direkte fra utbygger
    • Garanti på alle nybygg
    • Vi har kontor i Norge, Alicante og Malaga
    • Norske erfarne meglere
    • Oppfølging - fra kjøp til innflytting
    • Meget gode referanser fra kunder 
    • Hjelp til utleie av boligen
    • 80% finansiering i euro

    Den beste investeringen dere kan gjøre - er å velge riktig megler!
    Se våre referanser.

    KJØP DIREKTE

    SPANIA1 er IKKE et fordyrende mellomledd, og dere kjøper direkte hos utbygger. 
    Vi er et bindeledd mellom dere, spansk advokat, og utbygger.
    Dere får god hjelp fra kjøp til innflytting - uten at det koster noe ekstra.

    AVGIFTER I SPANIA

    Samlede offentlige avgifter ved kjøp av bolig i Spania er ca 13-14%.
    Les mer om avgifter på vår webside.

    UTLEIE

    Boligen i Spania kan finansieres ved utleie.
    Vi har et eget servicekontor som ordner med alt det praktiske.
    Mange velger å annonsere selv, men bruker våre kontakter i Spania for vask og renhold. Dette tar vi ikke betalt for. Les om utleie på vår webside.

    TIPS

    Bruk én megler (ikke flere) til å vise dere ALLE aktuelle prosjekter.
    Da rekker vi å bli kjent med deres behov, og grunnlaget for å finne drømmeboligen øker.
    SPANIA1 vil alltid forhandle frem beste avtale på vegne av våre kunder!

Publisert: 27.11.2025

Finn ID: 439091994

ID: SP1-57788