Punta Prima
- Pris
- Fra 290.000 € til 434.000 €
- Soverom
- 2-3 soverom
- Terrasse
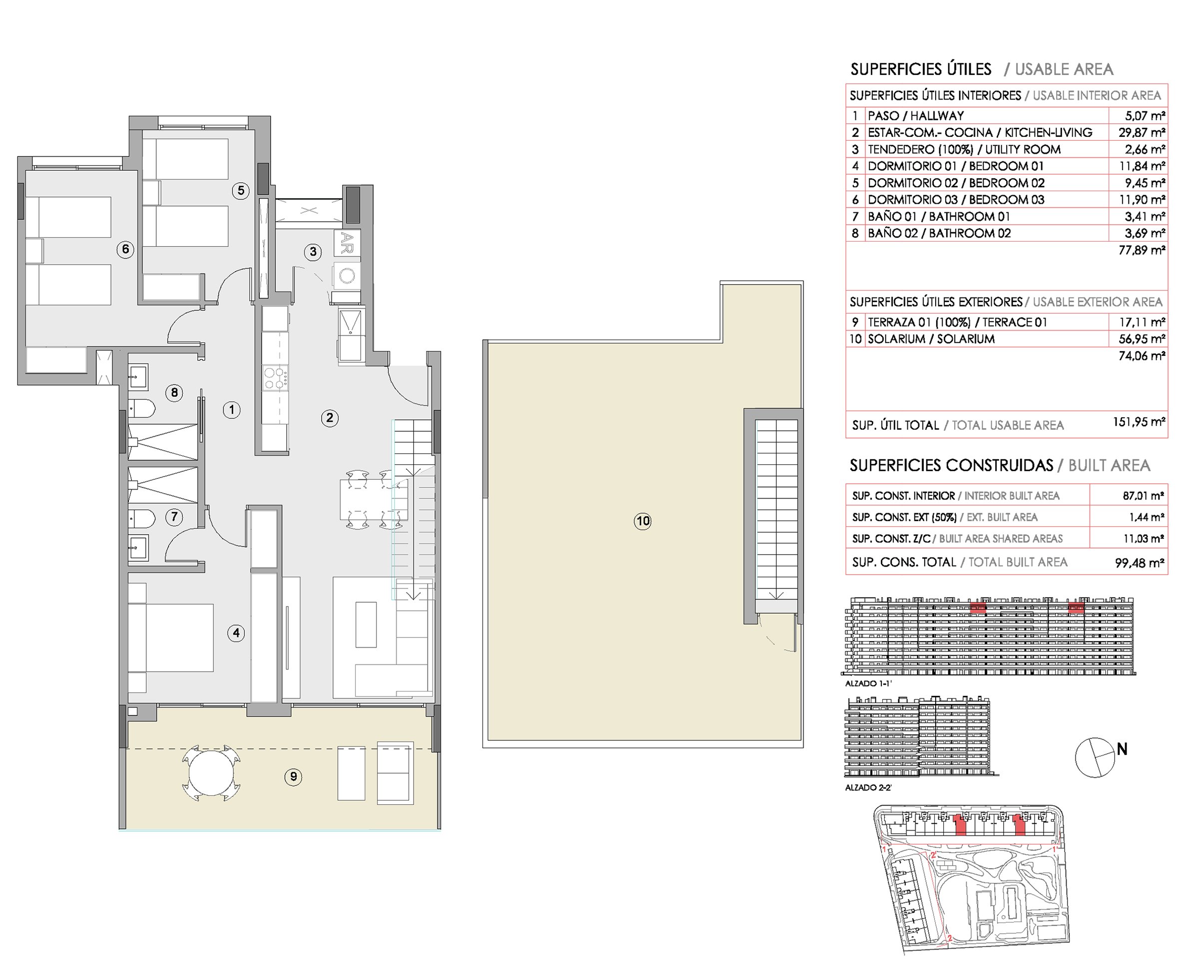
- Store terrasser fra 17m² til 75m²
- Beliggenhet
- Like ved sjøen
- Ferdigstillelse
- Fra september 2027
- P-plasser
- I underetasje
Corallia Resort er et nytt og eksklusivt boligprosjekt i Punta Prima, et av de mest populære områdene sør for Torrevieja. Prosjektet består av rundt 250 moderne leiligheter med høy standard, kun noen få hundre meter fra stranden og strandpromenaden.
Her utvikles et komplett boligområde i resort-stil med store grønne fellesområder og et bredt utvalg av fasiliteter for både avslapning og aktivitet. Beliggenheten gjør at man har gangavstand til restauranter, butikker og daglige servicetilbud, samtidig som Torrevieja sentrum og flere golfbaner ligger en kort kjøretur unna.
Leilighetene leveres med 2 eller 3 soverom og finnes i flere varianter: boliger på bakkeplan med privat hage, leiligheter i mellometasjer med romslige terrasser og penthouse med egen takterrasse. Alle boligene får parkeringsplass og bod inkludert i prisen, og planløsningene er utformet for å gi gode lysforhold og åpne oppholdsrom med utsyn mot fellesområdene.
Prosjektet bygges med moderne materialvalg og energieffektive løsninger, blant annet aerotermisk system for varmtvann, gulvvarme på badene og kjøkken med integrerte hvitevarer.
Fellesområdene er utviklet med fokus på trivsel og aktivitet gjennom hele året. Her finner man blant annet flere svømmebasseng, treningsrom, paddle-tennisbane, jacuzzi, lekeplass og store opparbeidede hageområder.
Boligene egner seg godt både som feriebolig for egen bruk og for utleie i perioder man ikke selv benytter boligen.
Turistutleie
Corallia Resort er også et prosjekt som egner seg godt for kjøpere som ønsker mulighet for utleie. Sameiets vedtekter tillater korttidsutleie uten begrensninger, noe som gjør det mulig å søke turistlisens for boligen. Eier står fritt til å håndtere utleien selv eller benytte et profesjonelt utleieselskap dersom man ønsker en mer enkel løsning.
Priser (april 2026)
2 soverom fra 290.000€
3 soverom fra 354.000€
Pris og plantegninger
-
Fase 1 , 2 og 3
-
-
-
-
-
-
-
Boliger i prosjektet
-
NOK 3.643.205 EUR 334.000
-
Punta Prima
Luksus like ved stranden - 3 soverom og stor terrasse - Fellesområde med resortkvaliteter
NOK 4.024.978 EUR 369.000 -
Punta Prima
Eksklusive leiligheter i Punta Prima - Resort-følelse med basseng, padelbane og jacuzzi
NOK 4.297.673 EUR 394.000 -
Punta Prima
HAVUTSIKT! Penthouse med 3 soverom og stor takterrasse - Fellesområde med basseng, spa og hage
NOK 5.497.531 EUR 504.000 -
Punta Prima
HAVUTSIKT! Hjørne-penthouse med 3 soverom og romslig takterrasse - Basseng, spa og hage
NOK 5.988.382 EUR 549.000 -
Punta Prima
Nybygg! Bolig nær stranden - 3 soverom og stor terrasse - Fellesområde med basseng, spa og hage
NOK 4.134.056 EUR 379.000 -
Punta Prima
Luksus nær stranden - 3 soverom og stor terrasse - Fellesområde med basseng, spa og hage
NOK 3.915.900 EUR 359.000 -
Punta Prima
Eksklusiv bolig nær stranden - 3 soverom og stor terrasse - Fellesområde med basseng, spa og hage
NOK 3.915.900 EUR 359.000
Meld interesse